Programme
Ecole primaire

Lieu
Attalens

Procédure
Concours ouvert — 1er prix

Maître d’ouvrage
Commune d’Attalens

Architectes
cBmM SA

Collaborateurs
Edouard Philippe
Laureline Zeender

Spécialistes
Gex & Dorthe, Bulle, ing. civil
Pierre Chuard, Fribourg, ing. CVS
Christian Risse SA, Givisiez, ing. E

Photographe
Vincent Jendly

Date
2013-2017

2_attalens_bis 3_attalens 4_attalens 6_attalens 7_attalens 8_attalens 9_attalens 10_attalens 11_attalens 12_attalens attalens18 attalens-maquette

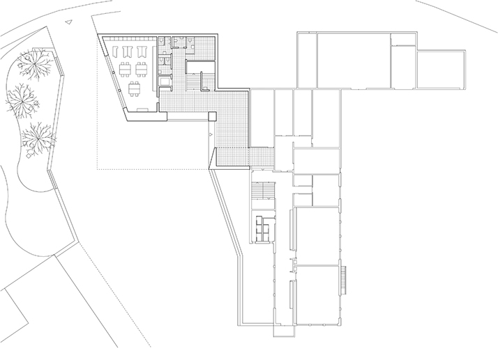
Le projet propose de traiter l’agrandissement de l’école par l’ajout d’un corps de bâtiment distinct, préservant l’intégrité du bâtiment existant.
Un volume bas sert d’interface entre les deux bâtiments. Il regroupe les deux niveaux d’entrée des rez-de-chaussée, nord-rue et sud-cour. Un corps de bâtiment principal, de même gabarit que le bâtiment existant, regroupe le programme des classes. L’organisation des volumes est compacte, cherche une cohésion entre les différents éléments nouveaux et existants, et compose une nouvelle entité scolaire, aux corps de bâtiments clairs et identifiables.

Cette implantation ménage une entrée principale au site scolaire depuis la rue, formalisée par une petite place végétale d’accueil, ouverte vers le centre du village.

Le nouveau bâtiment se creuse et accompagne, par l’articulation de son préau, l’entrée sur le site, en liant entre elles places et cours de récréation de caractères et de qualités différentes.

Les porte-à-faux généreux contribuent à la fluidité de ces liaisons. Les efforts des façades sont repris par les 3 niveaux supérieurs de voiles en béton rigides, permettant, sans grand effort statique et de moyen, d’utiliser le potentiel structurel du plan des étages.

Les classes s’organisent sur les niveaux supérieurs, dans un plan compact permettant une double orientation des salles.
Les salles d’appuis se regroupent au rez inférieur et les bureaux administratifs à l’entrée supérieure, côté rue. Le parking sera regroupé à l’est du site.

Le projet vise une réelle économie de moyen, tant par la compacité des volumes bâtis, sa matérialité, que par la concentration de l’intervention sur l’existant et la rationalité de l’organisation du plan et des façades. Le parti et son phasage permettent de maintenir l’exploitation du bâtiment existant dans de bonnes conditions durant les travaux, sans devoir engager des travaux préliminaires importants.

L’expression du bâtiment, sa matérialité, ses percements, poursuit la volonté de créer une nouvelle entité scolaire intégrée harmonieusement dans le milieu bâti existant, en privilégiant la continuité à la rupture.