![]() |
Programme Lieu Procédure Maître d’ouvrage Architectes Collaborateur Spécialistes Photographe Date |
![]() |
![]() |
![]() |
![]() |
![]() |
![]() |
![]() |
![]() |
![]() |
![]() |
![]() |
![]() |
![]() |
![]() |
![]() |
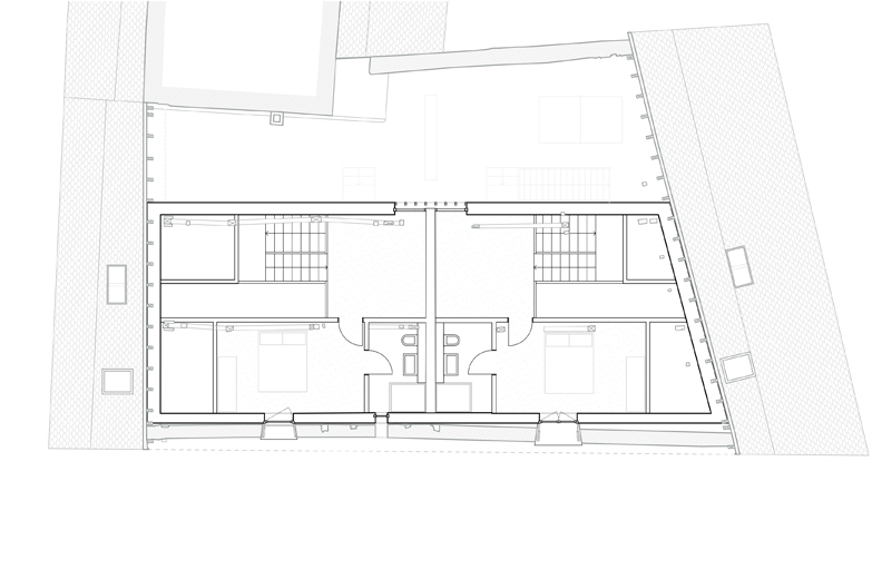
La transformation de ce rural s’inscrit dans une volonté de conservation et de respect de la substance bâtie qui caractérise les constructions paysannes du début des années 1800, d’épais murs en moellons qui renferment une charpente irrégulière en chêne destinée à soutenir la toiture. Volontairement discrète de l’extérieur, l’intervention consiste à disposer une boîte intramuros qui renferme deux appartements mitoyens dont la typologie dialogue avec la trame dictée par la structure existante. Les deux grandes travées de poteaux longitudinales organisent l’espace intérieur en trois tranches. Deux d’entre elles sont consacrées aux logements alors que la dernière accueille les espaces communs ainsi que les locaux techniques. Le neuf et l’ancien cohabitent dans cette partie qui fait office d’espace tampon avec l’habitation voisine, dont le volume rejoint celui de la ferme. L’accès aux appartements se fait par les porches d’époque qui conservent leur vocation de point d’entrée. Derrière ceux-ci, un patio se développe en double hauteur pour offrir une première lecture de l’ouvrage dont la chaleur du bois contraste avec l’austérité minérale de l’enveloppe. Chaque logement s’articule sur trois niveaux autour d’un escalier qui côtoie la poutraison sinueuse d’origine. Une série de percements dans l’ancienne façade pignon permet désormais aux logements de s’ouvrir sur le jardin arrière et d’y apporter de la lumière. L’habillage en bois des profondes embrasures de fenêtres exprime subtilement l’intervention à l’extérieur tout en préservant le caractère authentique de ces vieilles bâtisses. |
















